
“不是城里大平层,是改造后的农村自建房小院”——这不仅是居住空间的变化,更是一种生活方式的回归。两年前,这座房子还是普通的农村老宅,如今,它成为了一家人心中的“快乐老家”。耗时两年,花费30万元,未借助装修公司,完全自主改造的经历,让我获得了宝贵的第一手经验。本文将分享改造农村自建房的关键问题与实用建议,希望能为有类似计划的朋友提供参考。


改造前规划阶段三大关键
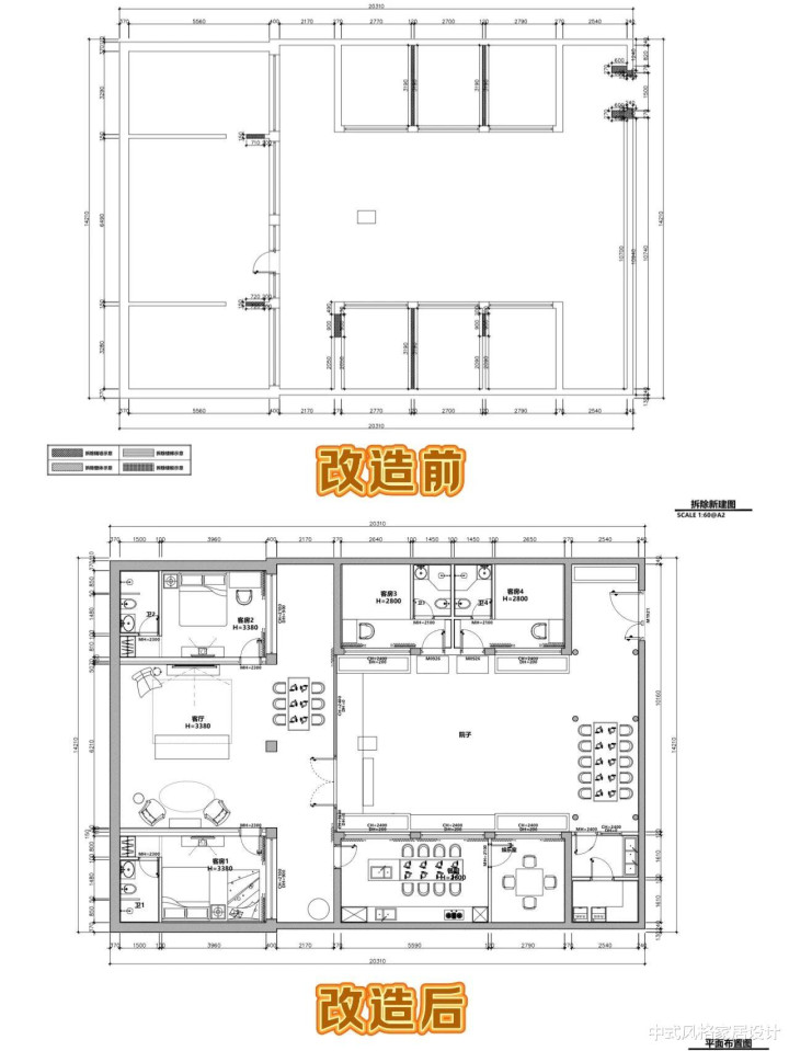
1. 结构安全评估是基石
老房改造的第一步必须是专业结构评估。我们邀请了当地建筑工程师对房屋承重墙、地基、屋顶结构进行全面检查。农村许多老房因年代久远,可能存在地基下沉、墙体开裂、木材腐朽等问题。我们最初想保留的东厢房,经评估发现主梁有严重虫蛀,最终决定拆除重建,这增加了预算,但确保了安全底线。

2. 功能性规划先行
我们制作了详细的“家庭需求清单”:父母需要无障碍设计的卧室和卫生间;孩子需要独立学习空间;全家需要公共活动区;我需要在家办公的区域。根据这些需求,我们重新规划了空间布局,将原本封闭的隔墙拆除,打造开放式餐厨一体空间,并增设了阳光房作为全家聚集的核心区。

3. 尊重原貌与现代化需求的平衡
农村自建房改造最易陷入两个极端:完全推翻重建失去乡土气息,或过度保留导致生活不便。我们采取“外壳保留,内核更新”策略:保留原有青砖外墙和坡屋顶轮廓,开云体育中国官方网站内部则完全按现代生活需求重新规划。这种“修旧如旧,内部如新”的方式,既维持了建筑与村庄的协调性,又满足了舒适居住需求。

改造过程中的五大实战经验
1. 因地制宜的建材选择
农村自建房改造中,材料运输和本地适配性至关重要。我们大量使用本地材料:当地青石铺院、回收老木料做装饰、本土竹材制作篱笆。这不仅降低了成本(运输费约占材料总费用的15%),也使建筑更融入环境。特别要注意的是,新型建材如保温板、防水涂料等,需考虑农村温湿度变化大的特点,我们选择了透气性好的无机保温材料,避免墙体结露。

2. 水电系统全面升级
老房水电系统往往是最大隐患。我们彻底更换了所有管线,并特别注意:
· 电路设计预留充足插座(特别是厨房和办公区),UEDBETapp注册登录每间房独立回路
· 水管采用PPR热熔管,室外部分加装保温层防冻
· 单独增设了污水净化系统,符合农村环保要求
· 预埋了网络管线,解决农村网络信号覆盖问题

3. 保温与节能的双重考虑
农村房屋常见问题是“夏热冬冷”。我们采取了组合方案:
· 外墙增加10cm厚保温层
· 屋顶采用“保温板+反射膜+瓦片”三层结构
· 门窗更换为断桥铝双层中空玻璃
· 南向大面积开窗吸收冬季阳光,北向小窗减少热损失
改造后第一个冬季,取暖能耗比邻居同类房屋降低了约40%。

4. 室内外空间的有机连接
农村自建房的最大优势是拥有院落。我们将室内外作为整体设计:
· 客厅采用整面玻璃推拉门,完全打开时可与院子连成一体
· 廊檐延伸至院落,形成雨天活动区
· 院子分区设计:菜园区、休闲区、儿童玩耍区
· 利用旧物改造:老石槽变水景,磨盘作茶台,增加乡土趣味

5. 预算控制的实战技巧
30万元预算要完成全面改造,必须精打细算:
· 自主采购主材,避开装修公司加价环节(约节省20%)
· 分阶段施工:先完成主体结构和屋顶,再内部装修,分散资金压力
· 部分工作自主完成:如墙面打磨、旧木料翻新、园艺布置
· 关键项目不省:结构安全、水电工程、防水保温等关乎长期使用的部分,选用可靠材料

空间功能的灵活性设计
两年居住体验证明,预留可变空间极为明智。孩子的游戏房现在逐渐调整为书房;客房兼做我的临时工作室;院子里的多功能棚架,夏季遮阴,冬季则可覆盖塑料膜变成阳光房。农村生活随着季节和家庭阶段变化,空间应具备适应这种变化的能力。

传统智慧与现代技术的结合
我们在改造中融合了许多传统建筑智慧:深屋檐防雨水冲刷墙体、高窗促进空气对流、利用地势自然排水等。同时,也引入了太阳能热水系统、雨水收集装置等现代可持续技术。这种结合使房屋既舒适又与环境和谐相处。

邻里关系的考量
{jz:field.toptypename/}农村房屋不是孤立体,改造时我们特别注意与邻里关系的协调:房屋高度不超过周边住宅、排水不影响邻居、建筑风格与村庄整体协调。这些考虑让我们更快融入社区生活,也获得了许多邻居的宝贵建议和帮助。

持续改进的心态
改造完成不是终点。入住后,我们根据实际使用情况不断微调:西晒的窗户增加了可拆卸遮阳棚、院子的铺装材料因冬季太滑而更换、菜园位置根据光照条件调整等。自建房改造是一个与房子共同成长的过程。

给计划改造者的实用清单
1. 前期准备:结构鉴定→需求清单→风格定位→预算规划
2. 关键顺序:结构加固→屋顶防水→外墙保温→门窗更换→水电重做→内部装修
3. 必留应急金:总预算的15-20%用于应对隐蔽工程问题
4. 时间管理:农村施工受天气、农忙季节影响,预留充足缓冲时间
5. 自主改造适用性:适合有时间、有基础技能、喜欢亲力亲为者;若无时间或经验,关键工程请专业人士仍是明智选择

从破旧老宅到快乐老家,改变的不仅是建筑,更是我们对生活的理解和期待。农村自建房改造是一条充满挑战却回报丰厚的道路,它让我们重新思考什么是真正的“家”,如何在现代生活中保留与土地、季节和传统的连接。

每个人的梦中情房或许不同,但创造过程带来的满足感却是相通的。愿每位怀有回乡改造梦想的人,都能在挑战与创造中,找到属于自己的那片诗意栖居地。


备案号: